オアーゼ日暮里レジデンス
- 新築
- 法人限定
- ファミリー
物件概要
- 所在地
- 東京都荒川区西日暮里2丁目33-8
- 交通
- JR山手線・常磐線・京浜東北線・上野東京ライン・京成本線・京成成田スカイアクセス・日暮里· 舎人ライナー「日暮里」駅 徒歩6分
JR山手線・京浜東北線・日暮里· 舎人ライナー・東京メトロ千代田線「西日暮里」駅 徒歩7分
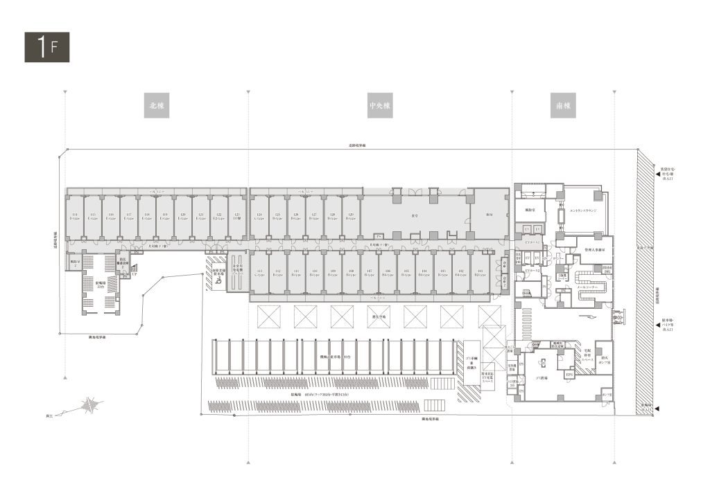
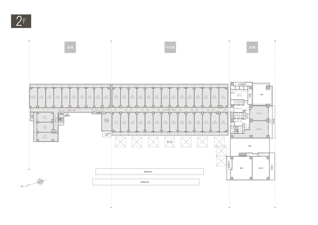
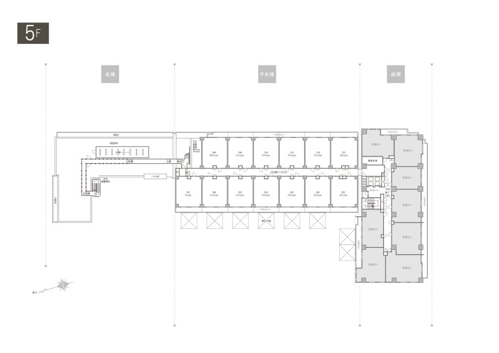
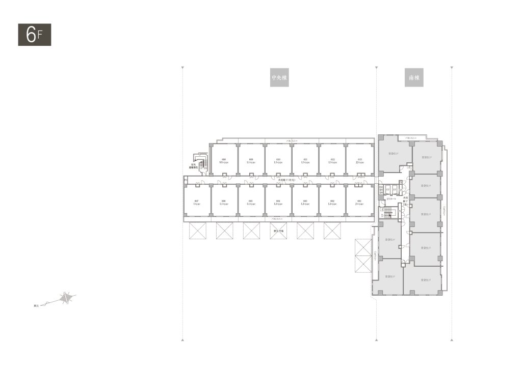
- 構造・規模
- RC造・地上13階建
- 竣工
- 2026年1月完成予定
- 総戸数
- 304戸(1~4階:寮151戸・5~9階:社宅61戸/当社管理、2~13階:賃貸住戸/他社管理)
- 間取り・面積
- 1LDK・50.11㎡~53.31㎡
物件詳細情報
「もっと詳しく知りたい」「物件を紹介してほしい」「社員寮の相談をしたい」という方はお気軽にお問い合わせください。
オンライン相談・内見可!
サービス ※一部有料となります
- 通勤管理
共用施設・貸出備品 ※一部有料となります
- オートロック
- エレベーター
- メールボックス
- 宅配ボックス
- コワーキングルーム
- 駐輪場
- 駐車場
- バイク置場
- 防犯カメラ
- Wi-Fi
居室設備
- エアコン
- 下足入れ
- クローゼット
- 室内物干し
- バストイレ別
- 独立洗面台
- 温水洗浄機能付き便座
- キッチン
- 3口コンロ
- モニター付インターホン
- インターネット常時接続







































